Q Marina Lojistik

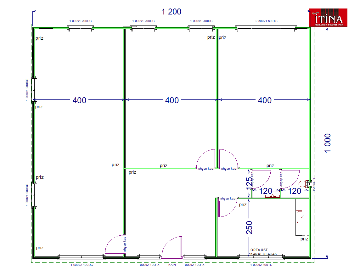
120 m2 İdari Ofis
10 X 12 Ebatında 2 adet Patron odası, Bekleme odası, muhasebe odası, wc ve yemekhane
Taş yünü panelden 270 cm yükseklik ve iç ve tavan kısımları alçıpan kaplama, alüminyum kapı özelliğinde, çatı çift kat yalıtımlı (80 mm cam yünü + 40 mm poliüretan)
Q Marina Lojistik
  
  
  
  
  
  
  
  
  
  
  
  
  
  
  
  
  
  
  
  
  
  
  
 Q Marina Lojistik
 