Enes Hafriyat İdari Ofis
Enes Hafriyat İdari Ofis

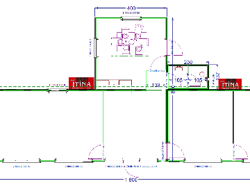
92 m2 İdari Ofis
4 x 18 Ebatında Patron odası, dinlenme odası, muhasebe ve mühendis odası
4 x 4 Ebatında Yemekhane
1,37 x 2,3 Ebatında wc lavabo
Taş yünü panelden 270 cm yükseklik ve iç ve tavan kısımları alçıpan kaplama, alüminyum kapı özelliğinde
Enes Hafriyat İdari Ofis
Enes Hafriyat İdari Ofis
Enes Hafriyat İdari Ofis (Son hali)
Enes Hafriyat İdari Ofis (İlk hali)