Murat Öz Bağ Evi Projesi

Murat Öz Bağ Evi (1)

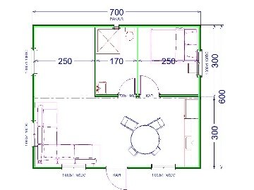
Toplam 62 m2 42 m2 kapalı 20 m2 teras, 1+1 şeklinde

Duvarlar 270 cm yüksekliğinde

Tavan asma tavan

Çatılı ve shingle kaplama

Murat Öz Bağ Evi (11)
Murat Öz Bağ Evi (10)
Murat Öz Bağ Evi (9)
Murat Öz Bağ Evi (8)
Murat Öz Bağ Evi (7)
Murat Öz Bağ Evi (6)
Murat Öz Bağ Evi (5)
Murat Öz Bağ Evi (4)
Murat Öz Bağ Evi (3)
Murat Öz Bağ Evi (2)
Murat Öz Bağ Evi (1)
Murat Öz Plan
Murat Öz İç Görsel