Bekir Karaoğlu Dubleks Projesi

Bekir Karaoğlu Dubleks Projesi
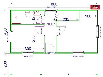
80 m2 + 16 m2 teras toplam 96 m2
6 x 8 ve 4 x 8 ebatında kapalı alan, 2 x 8 veranda
3+1 şeklinde (salon amerikan mutfak şeklinde, alt katta 1 yatak odası ve wc duş, üst katta 2 yatak odası, wc duş (duşakabin hilton her katta))
Duvarlar taş yünü yalıtımlı, dış kısım ahşap desenli fibercement kaplama
Tavan çift kat yalıtımlı (80 mm cam yünü + 40 mm poliüretan)
Yükseklik 270 cm
Wc duvarları ve mutfak tezgah arası mermer desenli kaplama
Bekir Karaoğlu Dubleks Projesi
Bekir Karaoğlu Dubleks Projesi
Bekir Karaoğlu Dubleks Projesi
Bekir Karaoğlu Dubleks Projesi