İbrahim Tümay Projesi

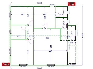
WhatsApp Image 2020-06-27 at 15.26.3910 x 10,5 ebatında

2+1 şeklinde hafif çelik prefabrik ev (2 oda, 1 salon ,mutfak, kiler, 2 wc, antre ve teras)

Duvarlar 80 mm taş yünü yalıtımlı, duvar iç kısmı 11 mm osb üzeri alçıpan ve boya,

Duvar dış kısmı 8 mm ahşap ya da taş desenli betopan-fibercemet kaplama ve dış cephe boyası

Çatı kısmı çift kat yalıtım (80 mm cam yünü + 40 mm poliüretan dolgulu sandaviç panel)

İbrahim Tümay (1)
İbrahim Tümay (14)
İbrahim Tümay (13)
İbrahim Tümay (12)
İbrahim Tümay (11)
İbrahim Tümay (10)
İbrahim Tümay (9)
İbrahim Tümay (8)
İbrahim Tümay (7)
İbrahim Tümay (6)
İbrahim Tümay (5)
İbrahim Tümay (4)
İbrahim Tümay (3)
İbrahim Tümay (2)
İbrahim Tümay Plan
İbrahim Tümay İç Görsel
İbrahim Tümay Projesi