Feruzan Ağtaş Prefabrik Ev Projesi

Feruzan Ağtaş Prefabrik Ev Projesi Teknik Özellikleri
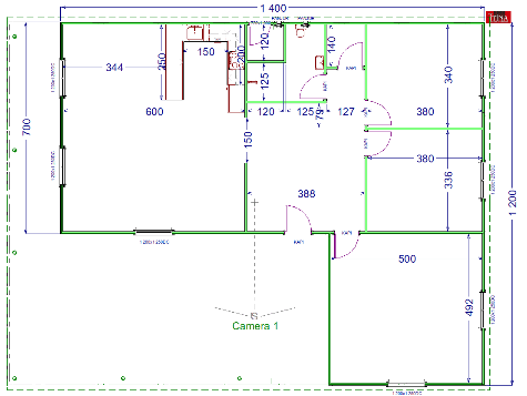
| Oturum Alanı | : | 109 + 83 192 m2 |
| Daire Sayısı | : | 3 + 1 |
| Altyapı Sistemi | : | Hafif Çelik Sistem |

| Oturum Alanı | : | 109 + 83 192 m2 |
| Daire Sayısı | : | 3 + 1 |
| Altyapı Sistemi | : | Hafif Çelik Sistem |